Die Meldung in Bildern
Wohnheim aus Massivholz und Ziegeln
Barkow Leibinger in Houston
Bild 22/25
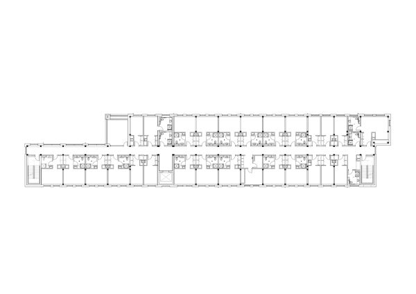
Grundriss 2. Obergeschoss
Bild: Barkow Leibinger