Barkow Leibinger gewinnen in Frankfurt am Main
Bild 9/24
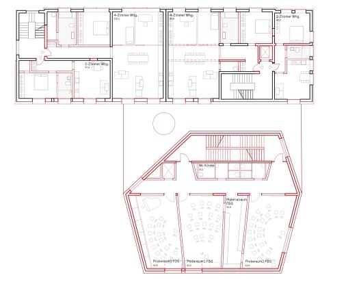
1. Preis: Barkow Leibinger, Grundriss 1. OG
Bild: Barkow Leibinger