Bahnhofsensemble von Burkard Meyer Architekten
Bild 17/20
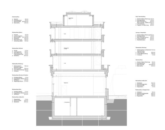
MF01 Konstruktionsschnitt
Bild: Burkard Meyer Architekten