Die Meldung in Bildern
Eine Schule ist kein Zirkuszelt
BUR Architekten im Kanton Luzern
Bild 20/23
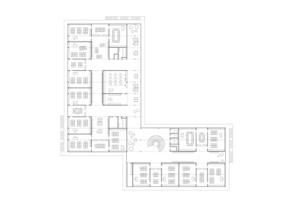
Grundriss 2. Obergeschoss
Bild: BUR Architekten