Die Meldung in Bildern
Vom Hinterhaus zum Stadtwohnturm
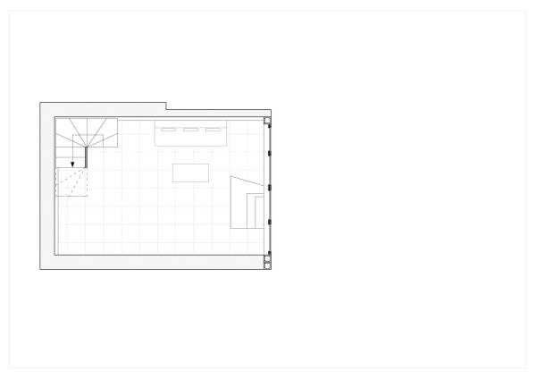
Aufstockung von JAVA Architecture in Paris
Bild 28/36
Grundriss UG
Bild: JAVA Architecture