Aufstockung im Berliner Gewerbehof von Karsten Groot
Bild 25/29
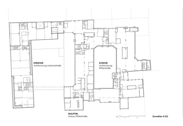
Grundriss 4. Obergeschoss
Bild: Karsten Groot Architektur