Die Meldung in Bildern
Grüne Ringel am Périphérique
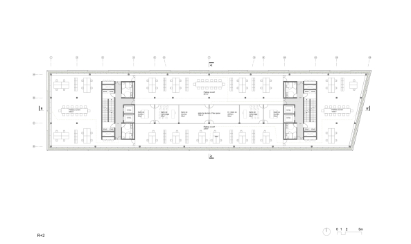
Atelier Kempe Thill plant Bürogebäude in Paris
Bild 12/13
2. Obergeschoss
Bild: Atelier Kempe Thill