Aretz Dürr Architektur in Altenkirchen
Bild 21/23
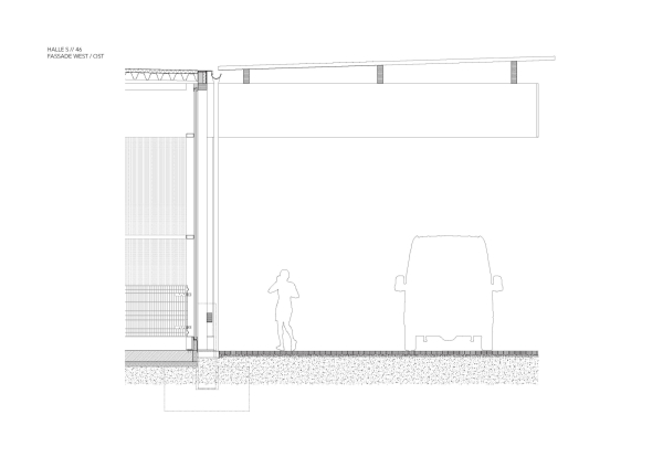
Fassadenschnitt West/Ost
Bild: Aretz Dürr Architekten