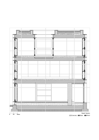
Porto, urban house, weiß, Simplizität, simplicity, Gitter, grid, Fassade, facade, Glas, Fenster, window, Fensterladen, shutter, Claudia Monteiro, Vitor Oliveira Architects, Jose Campo

Bild 22/23