Die Meldung in Bildern
Messer mit Treppe
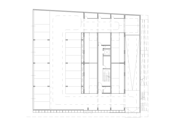
Appartementhaus in Assago
Bild 29/38
Parkplätze