Die Meldung in Bildern
Gemeinschaft in Scheiben
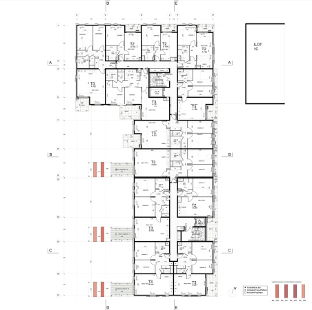
Apartmenthaus in Montpellier
Bild 16/16
4. Obergeschoss
Bild: Viguier et Associes