antonia reif archiectuur, Bungalow, Erweiterung, Ausbau, Umbau, Niederlande, Fassade, Glas, glass, facade, Villa, Terrasse, terrace, Wohnraum, Faltelemente, 1960er, 2015, Einfamilienhaus, Garten, garden, Treppe, stairs, Wohnraum, living space, Sauna

Bild 20/24

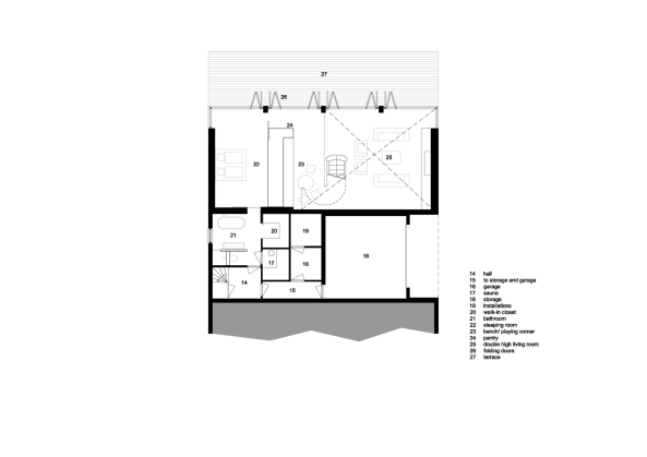
EG nach dem Umbau