Die Meldung in Bildern
Eingang im Hof
Amtsgericht-Erweiterung in Freiburg von Auer Weber
Bild 15/18
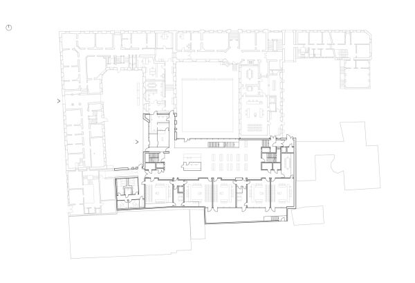
Grundriss Erdgeschoss
Bild: Auer Weber