Amerika-Gedenkbibliothek, Berlin-Kreuzberg, Willy Kreuer, Fritz Bornemann, Steven Holl, competition, F29 Architekten, Umbau, alteration, library, BauNetz, uncube

Bild 8/11

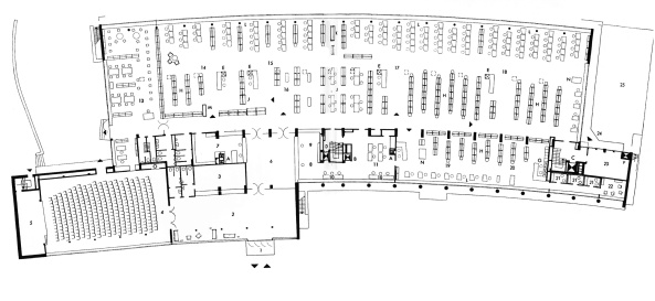
EG 1954