Aebi & Vincent Architekten im Zürcher Hauptbahnhof
Bild 32/34
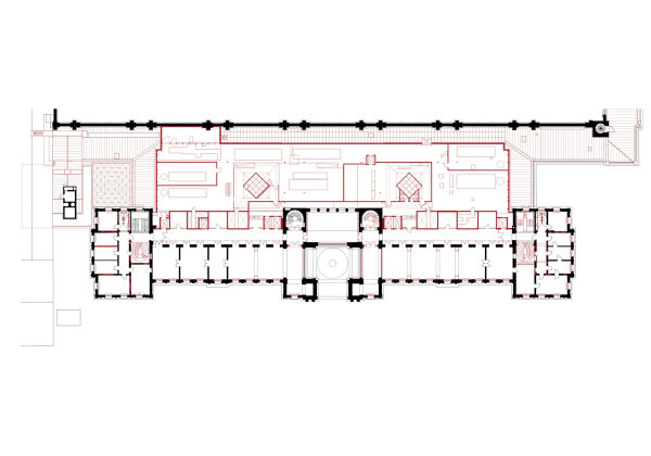
Grundriss 1. Obergeschoss
Bild: Aebi & Vincent Architekten