Die Meldung in Bildern
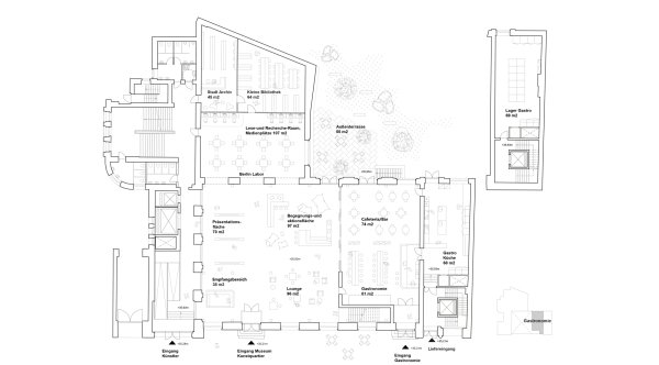
Marinehaus wird Kreativzentrum
Adept gewinnen Wettbewerb in Berlin
Bild 8/27
1. Preis: Adept, EG
Bild: Adept