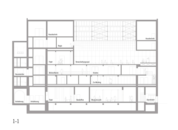
2. Preis: Numrich Albrecht Klumpp, Schnitt

Bild 16/27

2. Preis: Numrich Albrecht Klumpp, Schnitt

Bild: Numrich Albrecht Klumpp