Die Meldung in Bildern
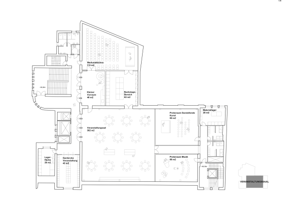
Marinehaus wird Kreativzentrum
Adept gewinnen Wettbewerb in Berlin
Bild 10/27
1. Preis: Adept, 4. OG
Bild: Adept