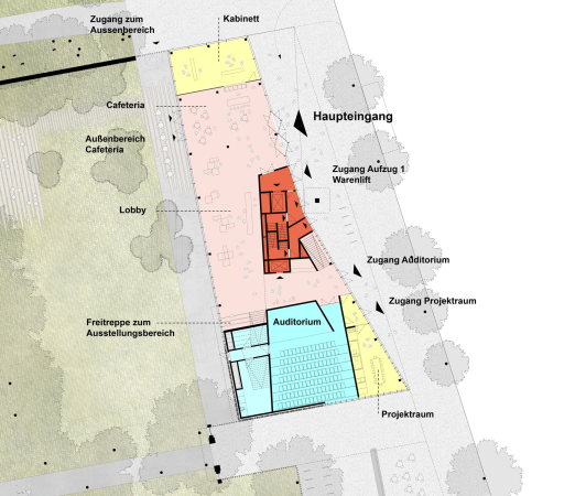
3. Preis: 2D+, Grundriss Erdgeschoss

Bild 38/41

3. Preis: 2D+, Grundriss Erdgeschoss

Bild: siehe Bildunterschrift