Die Meldung in Bildern
Stiftungshaus in der Einflugschneise
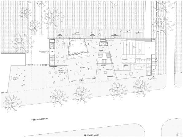
AFF gewinnen Wettbewerb in Berlin
Bild 13/41
1. Preis: AFF Architekten
Bild: siehe Bildunterschrift